maggihaus
Ein Haus wie zwei Maggiwürfel.

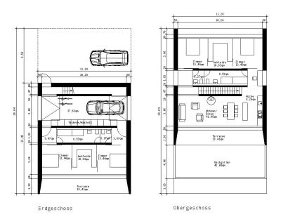
Erdgeschoss und Obergeschoss




Das Wohnzimmer

Das Schlafzimmer

Die Dachterasse


Der kleine Elefant


Erdgeschoss und Obergeschoss




Das Wohnzimmer

Das Schlafzimmer

Die Dachterasse


Der kleine Elefant

sunhouse - 20. Jan, 10:17













pavel und helena
pavel