Bahnhof Diessen am Ammersee
Seeside-Architecture und Eurotram

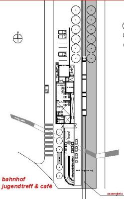
Für die Ammerseebahn ist am Westufer nach Schondorf, Utting, Riederau, Diessen Endstation.
Diessen hat eine Bahnstation, die irgendwann in der Zeit gestrandet ist. Geflickte Bahnsteige, ungepflegte Gleise, dazu die Rückseite einer Toilettenanlage mit der Aufschrift "Luftkurort Diessen", der Blick auf den See durch Wildwuchs verstellt. Das ist Vergangenheit.

Die Eurotram schwebt ab Stellwerk 2 von Riederau kommend über eine Rasenfläche in Diessen ein.


Die Bahn hält auf einer Piazza. Auf der dem Ort zugewandten Seite ist der alte Bahnhof frisch renoviert, zur Seeseite hat ein Gebäude wie ein Luxusliner angelegt. An jeder Stelle Durchblicke zum See, auch durch das rundum verglaste Bistro und die in gleicher Weise gestalteten Geschäfte.

Darüber die Appartements durchlässig nach Ost und West. Aufwachen am Morgen mit dem See, abends die Abendsonne auf dem Laubengang geniessen mit Seeblick quer durch das Appartement. Mit Einbruch der Dunkelheit schalten sich die Bodenstrahler des Bahnhofsplatzes ein. Die Nachtschwärmer kommen mit den neuen leisen Zügen.

Unten wird ein Konzert gegeben. andere sind auf "Carpaccio vom Ammerseezander auf Ruccola mit Flußkrebsschwänzen" aus, in der Kunsthalle wird die Ausstellung des Ammeraseeneuzugangs Georg Baselitz eröffnet.
Entstanden ist eine neue Situation: Diessen empfängt seine Gäste und Bürger auf einem Platz, der gleichzeitig das Entree zum Ort und zum See ist.
Am Wochenende pendeln die Partyzüge zwischen Schondorf, Utting, Riederau und Diessen. Entlang des Rasengleises entwickelt sich das neue Seeleben.


Für die Ammerseebahn ist am Westufer nach Schondorf, Utting, Riederau, Diessen Endstation.
Diessen hat eine Bahnstation, die irgendwann in der Zeit gestrandet ist. Geflickte Bahnsteige, ungepflegte Gleise, dazu die Rückseite einer Toilettenanlage mit der Aufschrift "Luftkurort Diessen", der Blick auf den See durch Wildwuchs verstellt. Das ist Vergangenheit.

Die Eurotram schwebt ab Stellwerk 2 von Riederau kommend über eine Rasenfläche in Diessen ein.


Die Bahn hält auf einer Piazza. Auf der dem Ort zugewandten Seite ist der alte Bahnhof frisch renoviert, zur Seeseite hat ein Gebäude wie ein Luxusliner angelegt. An jeder Stelle Durchblicke zum See, auch durch das rundum verglaste Bistro und die in gleicher Weise gestalteten Geschäfte.

Darüber die Appartements durchlässig nach Ost und West. Aufwachen am Morgen mit dem See, abends die Abendsonne auf dem Laubengang geniessen mit Seeblick quer durch das Appartement. Mit Einbruch der Dunkelheit schalten sich die Bodenstrahler des Bahnhofsplatzes ein. Die Nachtschwärmer kommen mit den neuen leisen Zügen.

Unten wird ein Konzert gegeben. andere sind auf "Carpaccio vom Ammerseezander auf Ruccola mit Flußkrebsschwänzen" aus, in der Kunsthalle wird die Ausstellung des Ammeraseeneuzugangs Georg Baselitz eröffnet.
Entstanden ist eine neue Situation: Diessen empfängt seine Gäste und Bürger auf einem Platz, der gleichzeitig das Entree zum Ort und zum See ist.
Am Wochenende pendeln die Partyzüge zwischen Schondorf, Utting, Riederau und Diessen. Entlang des Rasengleises entwickelt sich das neue Seeleben.

sunhouse - 9. Dez, 11:45


Die Hauptstrasse von Riederau schlängelt sich mit ausgeprägten Kurven durch den Ort und wird begleitet von dem grünen Band der anliegenden Grundstücke. Es beginnt an einem kleinen öffentlichen Platz mit Kriegerdenkmal, noch unvoll-ständig am neuen Kindergarten, weiter wunderschön am Garten von Zervos und dem Englischen Garten, bis hin zum Wildwuchs entlang der Bahntrasse. Dieses Grün entlang der Bahn gilt es ästhetisch aufzuwerten

















