Haus am See, Seeweg Süd
Es ist nicht wahr, dass Kompromisse die Sache leichter machen, sie machen sie schwieriger. Es gibt kein Richtiges im Falschen. Max Frisch
So...
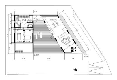
Erdgeschoss
Sonnendeck
Ansichten
oder so ...
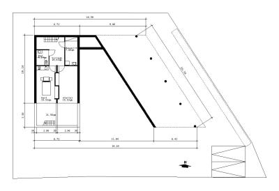
Erdgeschoss
Obergeschoss
Ansichten
oder so ...
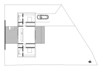
Erdgeschoss
Ansichten
oder so ...
Untergeschoss
Erdgeschoss
Südansicht+Schnitt
West/Nord/Ost alle Richtungen
sieht dann so aus ...




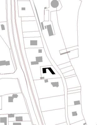
und die Lage auf dem Lageplan

So...
Erdgeschoss
Sonnendeck
Ansichtenoder so ...
Erdgeschoss
Obergeschoss
Ansichtenoder so ...
Erdgeschoss
Ansichtenoder so ...
Untergeschoss
Erdgeschoss
Südansicht+Schnitt
West/Nord/Ost alle Richtungensieht dann so aus ...




und die Lage auf dem Lageplan

sunhouse - 7. Jun, 17:12












